Save
Off-Plan Design Available Now

$3,456,000

Alpine Excellence with All Moden Comforts Yeah!!!
4 Bedrooms
2 Bathrooms
3 Lounges
2 Carpark Spots
170.00 Property Footprint
130 m² Land Footprint

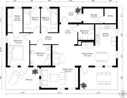
Design Floor Plan

Property Image 6

Design Description

A beautifully kept beachside family home with a contemporary coastal feel, four bedrooms, two bathrooms and generous indoor and outdoor living that captures light and easy flow. Set on a compact lifestyle parcel with landscaped grounds, double garaging and palm-lined frontage, this property offers a rare combination of coastal character and modern practicality.

Step inside to a home that balances relaxed family living with considered detailing. The entry leads into a well-proportioned living arrangement where natural light is a clear feature. Large windows frame the garden and palms beyond, drawing the outside in and providing a bright, welcoming atmosphere throughout. The property presents as a residence of presence and poise, constructed in brick with a beach and coastal style that is complemented by timber-clad upper levels and stone detailing to planted beds at ground level. The house sits comfortably on its site, presenting a neat, low-maintenance exterior with a paved driveway and established plantings.

Living
The living areas have been configured with everyday family life in mind, offering multiple spaces to relax, entertain and unwind. The accommodation includes three separate lounges that provide flexibility for different household needs, whether you require formal and informal living areas, a media space or separate areas for children and adults. Each living area benefits from abundant natural light and a connection to the exterior garden and courtyard, providing a pleasant indoor-outdoor flow that suits the coastal environment.

The home’s scale and arrangement encourage easy circulation between rooms, and the use of neutral paint tones and recessed downlights creates a calm, contemporary backdrop that will suit a range of furnishing styles. Flooring underfoot varies between carpet in the bedrooms and soft living zones and timber-look flooring in utilitarian spaces, all contributing to a comfortable and tidy aesthetic. Views from the living spaces extend to the established palms and garden beds, and the property listing notes mountain views as an additional aspect of its outlook.

Kitchen and Dining
The kitchen and dining spaces support practical family routines and feature a clean, modern aesthetic. White cabinetry provides a crisp and uncluttered appearance, with overhead storage run seamlessly along the wall. A marble-look tiled splashback adds a subtle texture and visual interest to the preparation area. Large windows at the kitchen and laundry area ensure good daylight for morning tasks and provide a direct visual connection to the outdoor planted terrace.

A dedicated laundry area is integrated sensibly within the service spaces and is shown with a stacked washer and dryer, underlining the home’s focus on convenience. The proximity of kitchen, dining and outdoor spaces promotes a natural flow for casual meals and entertaining, while the generous deck and protected outdoor areas extend the home’s dining options in warmer months.

Bedrooms
There are four bedrooms in total, each offering comfortable, private sleeping quarters. The rooms are well sized and presented with neutral palettes to encourage a restful ambience. One bedroom is depicted with soft, neutral carpeting, a large window and simple, functional joinery, providing a quiet retreat with garden views. The overall arrangement allows separation between adult and children’s zones, and with multiple living areas the house will suit families who require space for study, play or quiet time.

The building efficiency of approximately 42.5 square metres per bedroom reflects a home that is usefully proportioned, with the overall floor area recorded at 170 square metres more or less. Each bedroom benefits from natural light and the placement of windows ensures pleasant outlooks across the property’s planted areas.

Bathrooms
The house includes two modern bathrooms, configured to service both family and guest needs. The finishings appear contemporary and practical, consistent with the rest of the home’s restrained palette. The bathrooms are designed to function well for everyday use while retaining a tidy, low-maintenance aesthetic. Given the family-focused layout, these two bathrooms will comfortably accommodate the routines of a busy household.

Outdoor
Outdoor living is a strength of the property. The grounds are neatly landscaped and presented, with palms and established plantings that give the home a distinctive coastal character. A paved pathway runs beside manicured lawns and leads to the home’s main entry, while raised planted beds with stone detailing set against the base of the home add texture and a finished look to the gardens.

An elevated deck wraps part of the upper level, providing sheltered outdoor living that is well positioned for relaxed alfresco dining and watching the evening light. The property includes an outdoor entertainment area, offering the practical benefit of covered or protected space for gatherings. For families, there is also a playground area noted among the outdoor features, providing an immediate outdoor play option for children.

Vehicular access and parking are well considered. The double garage provides secure internal parking and storage, with an additional paved parking area to the front. There are two carparks recorded, and the driveway and paved surfaces are tidy and low maintenance.

Location
This home occupies a beach and coastal style setting with established palms and a tidy front garden that complements neighbouring properties. The listing notes mountain views from the property, which add to its broader sense of place. As a lifestyle-style property, it is presented within a compact lot that provides the convenience of easy care living while still offering outdoor interest and privacy.

Nearby conveniences such as local shops, cafes, schools and parks are typical considerations for buyers in this market. Specific local amenities and transport links are not detailed in the provided material, so a viewing will provide a better sense of neighbourhood facilities and immediate access to services.

Further Information
This property is offered for sale under a rural private sale and lease listing type, presenting an opportunity for those seeking a lifestyle property with beachside character and family-friendly features. The home is of mature age, recorded at between 75 and 100 years, and has been maintained to a standard that retains its coastal charm while incorporating modern conveniences.

Key figures for the property are recorded in the marketing information. The floor area is documented at 170 square metres more or less, with a land area of 130 square metres more or less. Annual property rates are listed at NZD 2,500.00 and the building is insured or able to be insured. The property’s building efficiency is calculated at 42.5 square metres per bedroom and lot size permeability is recorded as 130.77 percent. These particulars will be provided in full upon request and should be verified at viewing or through due diligence.

The home will suit a range of buyers. Families will appreciate the multiple living rooms, four bedrooms, the child-friendly playground area and the practical laundry. Those seeking a coastal lifestyle will value the house’s beach style, established palms and a decked outdoor entertaining area. Buyers looking for a low-maintenance lifestyle property with secure garaging and neat landscaping will find much to appreciate here.

Presentation is tidy and considered; the home shows the care of owners who have balanced the property’s period elements with contemporary updates. Interior finishes are understated and practical, including modern joinery, clean white cabinetry, a marble-look splashback in the kitchen, recessed downlights and a well-appointed laundry area with a stacked washer and dryer.

For further information or to arrange a private viewing, please contact the Bayleys salesperson listed for this property. We are happy to provide additional particulars, confirm measurements and guide you through the next steps. This is a well-presented coastal lifestyle opportunity that merges functional family living with attractive outdoor aspects, and viewings are encouraged for those who would like to fully appreciate the light, layout and character of the home.

Key Features
💰 Sale price: $3,456,000.0
🧱 Construction: Brick
🛏️ Bedrooms: 4
🛁 Bathrooms: 2
🛋️ Lounges: 3
🚗 Carparks: 2
📐 Land Area: 130m²
📐 Floor Area: 170m²
📅 Property age: 75-100 years
🏠 Property style: Beach / Coastal
🌅 View: Mountain View
🛡️ Insurance: Has insurance
🧾 Annual property rates: $2,500.00
📊 Building efficiency: 42.5 m² per bedroom
💧 Lot size and permeability: 130.77%
🌿 Outdoor Entertainment Area
🌿 Playground

Design Details

Property Type:
Farms
Category:
sale
Availability:
Select availability
Build Time:
Select build time
Street Address:
4 Atawhai Lane, Belfast, Christchurch
Suburb:
Belfast
City:
Christchurch
Region:
Canterbury Region
Land Area:
130m²
Floor Area:
170.00
Floor to Land Ratio:
1.31 (Higher density)
Site Coverage:
130.77% of total land
Annual Property Rates:
$2,500
Building Efficiency:
42.50m² per bedroom

Builder Information

Jingyu Test

Company Not Available
Website Not Available

Building Performance Details

Comprehensive property specifications and performance metrics

Energy Systems

Solar Power System

Installed

EV Charging

Available

Heating Systems

Central Heating
Underfloor Heating
Radiant Heating
Heat Pump
Ducted Heat Pump System
Gas Fireplace

Cooling Systems

Ceiling Fans
Ducted Air Conditioning
Heat Pump

Lighting

Standard

Environmental Impact

Water Efficiency

High

Carbon Footprint

N/A

Sustainable Materials

N/A

Renewable Energy

N/A

Construction and Materials

Exterior Cladding

Brick Veneer
Aluminium Cladding
Board and Batten
Brick
Stone Cladding
Traditional Plaster

Interior Cladding

N/A

Construction Type

Brick

Insulation and Glazing

Windows

Triple Glazing

Insurance Risk Rating

Has Insurance/Can Be Insured

This property is currently insured or eligible for insurance coverage

Based on location, building materials, and natural hazard exposure
Mortgage Calculator

Air Metrics

Air Quality Rating
Excellent
Grade A+
Air Replacement Time
Fast
1 hours
Temperature Stability
Stable
High

Based on continuous monitoring and environmental sensors

Utilities & Services

Water Source

Self Supply

Sewerage System

Council Sewer

Power Supply

Mains Power
Battery Backup
Solar

Internet Connection

N/A

Based on council records and property documentation

Solar Exposure Metrics

Daily Sunlight
4-6 hours
4-6 hours / day
Seasonal Variation
Low
Low
Solar Potential
Low
Low

Based on annual solar studies
and site analysis

Thermal Performance Metrics

Heat Retention
Low
Low
Thermal Bridging
High
High
Temperature Differential
N/A
N/A

Based on thermal imaging and temperature monitoring

School Zones (10 KM)

Nearby Schools (10 KM)
Loading...
Loading nearby schools...
🏫
No Schools Found
We couldn't find any schools in the nearby area.

Enquire About 4 Atawhai Lane, Belfast, Christchurch

Thank you! Your message has been sent successfully. The agent will contact you soon.
Error! Something went wrong. Please try again.
1 of 10
Property Image