Save

$20

12A Checketts Avenue, Halswell, Christchurch

8 Bedrooms
1 Bathrooms
1 Lounges
0 Carpark Spots
170.00 Property Footprint
130 m² Land Footprint

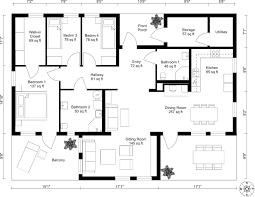
Property Floor Plan

Property Image 5

Property Description

A generously proportioned heritage bungalow with modern heart and expansive outdoor living, offering eight plus bedrooms and a versatile layout across approximately 170 m² more or less. Beautifully updated interiors open to an exceptional covered entertaining deck and pool setting ideal for family life, rental potential or a multi-occupancy arrangement.

Step inside this well maintained stone bungalow and you will immediately appreciate the balance between heritage character and contemporary comfort. The entry gives a gracious first impression, leading directly into a bright and welcoming living zone where natural light and thoughtful finishes create an inviting everyday environment. The home presents with a single lounge space that flows easily through to the heart of the house, presenting a practical layout suited to a range of household needs. With a substantial footprint of about 170 m² more or less, the accommodation is generous, and the overall feel is warm and homely while offering excellent potential for adaptation by its next owners.

Living
The principal living area is a comfortable and functional hub. Large windows draw daylight into the room throughout the day, and the open aspect from this space provides a clear connection to the kitchen and the outdoor entertaining deck. The lounge is positioned to serve as a family gathering point, with room for multiple seating arrangements and easy circulation to other parts of the home. The interior finishes are clean and contemporary, with timber flooring visible in the living and kitchen zones that contributes to a cohesive, low maintenance feel. Recessed downlighting provides even illumination and a modern ambiance that complements the timeless exterior of the bungalow. Overall, the living arrangements suit those who appreciate relaxed family living and straightforward entertaining.

Kitchen and Dining
The kitchen is a particular highlight, presenting as a modern, well planned space. Crisp white cabinetry and a long breakfast island create a bright working environment and casual dining option. The island accommodates bar seating for at least four and faces into the living areas, making it an excellent focal point for social cooking and informal meals. A tiled splashback in a classic subway tile pattern and undercabinet lighting provide both practicality and visual appeal. Contemporary appliances are integrated into the layout and a dishwasher is visible, offering convenience for everyday life and entertaining alike. Adjacent to the kitchen is a dining position that flows directly through to the covered outdoor deck, enabling effortless indoor out entertaining and strong connection to the pool area. The kitchen and dining arrangement has the clarity of design to handle busy household routines while remaining neat and welcoming for guests.

Bedrooms
Accommodation comprises eight plus bedrooms, arranged to offer flexibility and to accommodate a range of household configurations. The property’s generous room count and the building efficiency figure supplied indicate sizeable rooms that will suit families, multi generational living or investors seeking multiple tenancies. While individual room layouts are adaptable, the overall plan supports distinct sleeping zones separated from the main living areas, helping maintain privacy and quiet when required. Natural light filters into these rooms, and the long standing nature of the home suggests that many of the spaces have been carefully maintained over time. The bungalow form and heritage construction lend a sense of solidity and presence to the bedrooms, which will appeal to purchasers wanting character combined with practical proportions.

Bathrooms
The home includes a single modern bathroom that has been finished to current expectations. The bathroom presents a clean contemporary aesthetic and is positioned for easy access from the principal sleeping areas. While one bathroom will require some planning for larger households during peak times, it has been presented in good order and reflects the overall approach of sympathetic updating throughout the property. Its location within the home is practical and contributes to efficient internal circulation between bedrooms and living spaces.

Outdoor
The outdoor spaces are a genuine feature of this property and are shown with a clear orientation towards year round entertaining and family use. A covered alfresco deck extends from the living and dining areas and is large enough to accommodate both dining and lounge furniture. The deck is sheltered by a substantial pergola roof with exposed framing and practical overhead lighting, creating a defined outdoor room that can be used in varied weather. From this covered area the eye is drawn to the pool and spa arrangement beyond. The swimming pool is a central outdoor element, edged by timber decking and finished with integrated lighting that creates an atmospheric setting at dusk. Adjacent to the pool is a raised decking boardwalk that links seamlessly to the entertaining areas, and a separate spa area offers an additional place to relax.

Beyond the immediate pool environment sits a lawn framed by hedging and established trees. The grounds are presented as private and secure, with clipped hedges defining the perimeter and providing a sheltered backdrop for the lawn. The size and layout of the garden spaces allow children and pets to play safely while adults entertain poolside. The photographs indicate careful landscape management and a comfortable mix of paved, decked and turf surfaces that together support a relaxed outdoor lifestyle.

Heritage and stewardship
This bungalow carries a heritage character and is noted to be over 100 years old, reflecting a long standing presence in its neighbourhood. The stone construction contributes to the home’s sense of permanence, and the visible contemporary interventions, such as the kitchen and the outdoor entertaining infrastructure, demonstrate a thoughtful approach to renovation. This combination of heritage fabric and contemporary living suggests that the property has been well cared for and updated in a manner that respects its original character while meeting modern expectations.

Suitability and potential
With its numerous bedrooms, single bathroom and generous living and outdoor spaces, the property will suit a number of buyer profiles. Large or extended families will value the breadth of accommodation and the strong indoor out flow to the pool and deck. Investors and those seeking multi occupancy or boarding possibilities will recognise the clear rental potential inherent in a home with so many bedrooms. Equally, purchasers with an interest in restoring or further enhancing a heritage bungalow will appreciate the solidity of the stone construction and the opportunity to personalise aspects of the home.

Practical points and overall feel
Floor area and section size are provided as 170 m² and 130 m² respectively, more or less, which give a clear sense of internal scale and the land holding. The property sits as a bungalow of heritage age with stone construction and a tiled roof evident in the photographs. There is no formal vehicle parking shown, and the outdoor presentation and pool area are dominant features of the site. Internally the floors, joinery and fittings present as well chosen and maintained, with a palette that leans to white cabinetry, timber floors and clean tiled surfaces that will appeal to purchasers seeking a neutral, contemporary base to suit individual styling.

Further Information
This is a compelling opportunity to secure a heritage bungalow that has been brought into the present day with careful planning and practical updates. The property presents as a warm family home and a versatile asset, with a private and well appointed outdoor entertaining area and pool, a modernised kitchen and a substantial number of bedrooms offering flexibility of use. For further information or to arrange a private viewing please contact the Bayleys salesperson named for this listing. They will be pleased to discuss the home in detail and to help you explore the possibilities it offers.

Key Features
💰 Sale price: $20
🧱 Construction: Stone
🛏️ Bedrooms: 8
🛁 Bathrooms: 1
🛋️ Lounges: 1
🚗 Carparks: 0
📐 Land Area: 130m²
📐 Floor Area: 170m²
📅 Property age: 100+ years (Heritage)
🏠 Property style: Bungalow
🌅 View: No View
🛡️ Insurance: Has insurance
🧾 Annual property rates: $2
📊 Building efficiency: 21.25 m² per bedroom
💧 Lot size and permeability: 130.77%

Property Details

Property Type:
Apartments
Category:
sale
Street Address:
12A Checketts Avenue, Halswell, Christchurch
Suburb:
Halswell
City:
Christchurch
Region:
Canterbury Region
Land Area:
130m²
Floor Area:
170.00
Floor to Land Ratio:
1.31 (Higher density)
Site Coverage:
130.77% of total land
Annual Property Rates:
$2
Building Efficiency:
21.25m² per bedroom

Agent Information

James

James Agent Company
Website Not Available

Building Performance Details

Comprehensive property specifications and performance metrics

Energy Systems

Solar Power System

N/A

EV Charging

N/A

Heating Systems

Central Heating
Radiant Heating
Ducted Heat Pump System

Cooling Systems

Heat Pump
Whole-House Ventilation System

Lighting

N/A

Environmental Impact

Water Efficiency

N/A

Carbon Footprint

N/A

Sustainable Materials

N/A

Renewable Energy

N/A

Construction and Materials

Exterior Cladding

N/A

Interior Cladding

N/A

Construction Type

Stone

Insurance Risk Rating

Has Insurance/Can Be Insured

This property is currently insured or eligible for insurance coverage

Based on location, building materials, and natural hazard exposure
Mortgage Calculator

Air Metrics

Air Quality Rating
N/A
Grade N/A
Air Replacement Time
N/A
N/A
Temperature Stability
N/A
N/A

Based on continuous monitoring and environmental sensors

Utilities & Services

Water Source

N/A

Sewerage System

N/A

Power Supply

N/A

Internet Connection

N/A

Based on council records and property documentation

Solar Exposure Metrics

Daily Sunlight
Less than 4
Less than 4 / day
Seasonal Variation
Low
Low
Solar Potential
Low
Low

Based on annual solar studies
and site analysis

Thermal Performance Metrics

Heat Retention
Low
Low
Thermal Bridging
High
High
Temperature Differential
N/A
N/A

Based on thermal imaging and temperature monitoring

School Zones (10 KM)

Nearby Schools (10 KM)
Loading...
Loading nearby schools...
🏫
No Schools Found
We couldn't find any schools in the nearby area.

Contact Selling Agent James

Thank you! Your message has been sent successfully. The agent will contact you soon.
Error! Something went wrong. Please try again.
1 of 10
Property Image