Save

$6,000,000

20A Oxford Terrace, Devonport, Auckland 0624, New Zealand

Mid century charm on Cheltenham Beach
3 Bedrooms
2 Bathrooms
2 Lounges
2 Carpark Spots
270.00 Property Footprint
673 m² Land Footprint

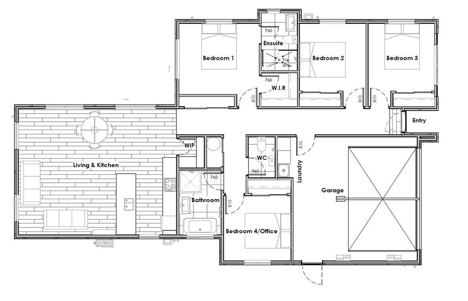
Property Floor Plan

Property Image 11

Property Description

A rare beachfront opportunity on Cheltenham Beach with direct access to sand and panoramic views across the Hauraki Gulf to Rangitoto. This mid century coastal home combines character vaulted living, generous floor area of 270 m² more or less and expansive lower-level space, offering immediate enjoyment and clear scope to refresh and personalise.

Arriving and the first impression
Set in the heart of the beach, this property presents a unique relationship with the shoreline. A neat lawn and a gate open directly onto the sand, so morning walks, swimming and boat-watching become part of everyday life. The house sits on a 673 m² section more or less and is constructed of mixed materials, reflecting its thatched history and seaside provenance. At an age of 75 to 100 years, the home carries mid century charm and architectural features that speak to a thoughtful era of design, notably the vaulted ceilings with exposed timber beams that shape the principal living spaces.

Living
Step through the glazed entry corridor, laid with warm terracotta-style tiles, and the living areas reveal themselves with immediate impact. The main living and dining zone is light-filled, with large picture windows and sliding glass doors that frame the sea and Rangitoto beyond. Vaulted ceilings with exposed timber beams create a generous, airy feel and the layout encourages an effortless connection between the interior and outdoors. The living room opens to a covered deck area where fixed bench seating looks straight out to the water, making it a comfortable place to pause and watch the tide, or to entertain while the sun slips down over the island.

There are two distinct lounges in the house, giving flexibility for family living or for those who entertain. One lounge enjoys direct access to the deck and the best of the sea views, the other sits adjacent and flows through the dining space. Natural light is abundant throughout these rooms and the orientation maximises coastal outlooks, creating spaces that feel both relaxed and special.

Kitchen and Dining
The kitchen sits conveniently off the dining area and has been configured with practical joinery and a clear outlook to the garden. Bench space and cabinetry provide a functional heart to the home and a breakfast bar or informal eating zone could be easily fashioned to suit modern living. The adjacent dining area is generous enough for a dining table and creates a convivial hub for daily meals or larger gatherings. From here, the transition to the living room and out onto the balcony is seamless, so cooking and entertaining remain connected to the sea view and to guests.

Bedrooms
There are three bedrooms in total, each offering a coastal calm. The principal bedroom is a comfortable size and benefits from a window that frames garden greenery, plus the convenience of an ensuite bathroom. The other bedrooms are well proportioned, with natural light and pleasant garden aspects that make them private and restful. The overall configuration will suit families, couples who want a dedicated workspace, or those seeking a beach home with practical sleeping arrangements for guests.

Bathrooms
Two bathrooms serve the house. One is an ensuite attached to the main bedroom, providing private facilities for the master. The family bathroom is accessible to the other bedrooms and living areas. Both are functional and in keeping with the home’s character, and there is scope to modernise if a new owner wishes to upgrade fixtures and finishes to their personal taste.

Additional rooms and flexible spaces
One of the defining strengths of this property is the significant lower-level area. Photographs show extensive open-plan rooms painted white, with a series of stepped levels and generous ceiling heights that create a flexible footprint. These rooms are currently used as versatile spaces that could act as a large rumpus, studio, family room, or a home office configuration. Built shelving, a raised platform and good ceiling-mounted lighting are evident, and the openness provides an ideal canvas for creative use or a sympathetic renovation.

There is also a practical internal entry hall with large glazed doors and the sense of an indoor-outdoor flow that serves both the upper and lower living zones. Two carparks are available on the site and, for peace of mind, the property is currently insured or can be insured.

Outdoor
The outdoor experience is the primary reason buyers will be attracted to this address. Sand is literally steps away; a lawn and low hedge separate the house from the beach and a gate opens onto the sand, which is a rare and highly prized feature on Cheltenham Beach. The front garden is small but private, with well-established planting that buffers the home from the reserve and beach. The covered deck off the main living area is perfectly placed to enjoy morning coffee or afternoon light, while the ground-level patio provides immediate access to sand and sea.

The garden and patio areas are straightforward and low maintenance, which complements the coastal lifestyle and allows owners to spend their time on the beach rather than on extensive gardening. The outdoor spaces also present scope for landscaping enhancements or the addition of sheltered seating and barbecue facilities to further enhance seaside living.

Character and condition
This is a home that wears its age with character. The mid century style is apparent in the exposed beams, pitched ceilings and the thoughtful arrangement of windows that frame water views. Floor coverings in the living and dining areas visually read as cork or warm-toned flooring, and timber joinery and window frames are a recurring feature that creates continuity throughout. The property has been maintained and is presented in a tidy condition while offering clear potential for modernisation and improvement. For buyers who appreciate original character and who wish to personalise a significant beachfront asset, the house provides a superb starting point.

Lifestyle and potential
Beyond the immediate appeal of beachside living, the property also demonstrates clear potential for short-stay or long-term letting, evidenced by an Airbnb price range of $950 to $1,100 and a rental range of $3,500 to $4,000. These figures indicate the location is attractive to holidaymakers and to those seeking a coastal rental, which may be of interest to investors or those who wish to offset holding costs.

The scale of the house, at 270 m² more or less, provides space for contemporary family life or extended entertaining. Building efficiency is noted at 90 m² per bedroom which underscores the generous proportions of the accommodation. Given the property’s mixed materials construction and its age, any purchaser should consider the value of a sympathetic refurbishment to enhance thermal performance, weatherproofing and interior finishes while preserving the home’s distinctive architectural elements.

Location
Located on Cheltenham Beach with views across the Hauraki Gulf to Rangitoto, this home is fundamentally anchored in its coastal setting. The address offers an authentic beach lifestyle where sunrises, swims and sea views are part of daily life. The property is described as being beautifully positioned in the centre of the beach, which suggests an easy, immediate relationship to the water that will be hard to replicate.

Further Information
This property is offered for sale as a private sale with a price guide of $6,000,000. Annual property rates are approximately $6,500 and the home is listed with two carparks on the site. The home carries a coastal style and historical character, and it presents both immediate enjoyment and strong potential for enhancement. Insurance is in place or can be arranged, allowing a new owner to take up occupancy with confidence.

Who will this suit
The house will suit a range of buyers. Families will appreciate the space, dual lounges and the safe, direct beach access for children and pets. Couples or downsizers who prioritise lifestyle over extensive grounds will find the straightforward garden and immediate beach connection highly attractive. Investors and holiday-home seekers will note the strong rental and short-stay returns recorded for similar properties in this location. Finally, those who value mid century character and who are prepared to undertake considered updates will relish the opportunity to restore and refine a notable beachfront home.

Summary and call to action
This is a rare opportunity to secure a prime beachfront property on Cheltenham Beach, where a gate opens straight onto the sand and Rangitoto provides a spectacular focal point. The home combines vaulted, beam-lined living spaces, generous floor area of 270 m² more or less, substantial lower-level rooms and a garden that fronts directly to the beach. It is presented with clear potential to refresh and to adapt to contemporary living while retaining its coastal character.

For further information or to arrange a private viewing, please contact the Bayleys salesperson. This is a unique offering in an exceptional location and we invite interested buyers to discover the lifestyle and possibilities that come with owning a home on Cheltenham Beach.

Key Features
💰 Sale price: $6,000,000
🧱 Construction: Mixed Materials
🛏️ Bedrooms: 3
🛁 Bathrooms: 2
🛋️ Lounges: 2
🚗 Carparks: 2
📐 Land Area: 673m²
📐 Floor Area: 270m²
📅 Property age: 75-100 years
🏠 Property style: Beach / Coastal
🌅 View: Sea View
🛡️ Insurance: Has insurance
🧾 Annual property rates: $6,500
📊 Building efficiency: 90 m² per bedroom
💧 Lot size and permeability: 40.12%
🌿 Garden
🌿 Patio

Bilateral Intelligence Dashboard

Local lifestyle analysis powered by fragment-data synthesis

Active Market
Vibe Score
Tranquil • 23%

Our proprietary algorithm synthesizes local point-of-interest density, transit flow, and community engagement to determine the "lifestyle energy" of this coordinate.

Serenity Index
Sanctuary • 100%

Calculates tranquility potential by weighing proximity to open green space against major thoroughfare noise and commercial traffic patterns.

Lifestyle Premium Anchors

Gym/Fitness
Les Mills Britomart
4.1km
Boutique Cafe
Daily Bread — Britomart
4.4km
Dining
Amano
4.1km
Pub/Social
Queens Rooftop & Wineshop
4.3km
Market
New World Supermarket Devonport
1.3km
Top Schools
Local Facility
1.0km
Parks
Takapuna Beach Reserve Playground
5.0km
Transit Hub
Auckland Strand
3.9km
Medical
Mission Bay Doctors
3.4km
🏡

AI Location Synthesis

Bilateral Identity Authenticated

TOWNSHIP

Village Profile: Defined by a focused community atmosphere and a relaxed, village-centered pace of life with essential local character.

Boutique Social Scene: Enjoy living a short drive from artisanal social hubs like Daily Bread — Britomart, which serves as a premier local anchor for residents.

Culinary Diversity: The local culinary landscape features diverse dining experiences a short drive from your door, headlined by well-regarded establishments like Amano.

Coastal Lifestyle: Pristine New Zealand coastlines at Takapuna Beach Reserve Playground are a short drive from home, offering unparalleled opportunities for recreation and natural serenity.

Educational Foundation: Secure a strong family future with Devonport Primary School located minutes away from your doorstep, ensuring quality schooling options.

🏡
Balanced Lifestyle Seeker

Property Details

Property Type:
Houses
Category:
sale
Street Address:
20A Oxford Terrace, Devonport, Auckland 0624, New Zealand
Suburb:
Devonport
City:
Auckland
Region:
1
Land Area:
673m²
Floor Area:
270.00
Floor to Land Ratio:
0.40 (Higher density)
Site Coverage:
40.12% of total land
Annual Property Rates:
$6,500
Building Efficiency:
90.00m² per bedroom

Agent Information

James Private Seller

Company Not Available
Website Not Available

Building Performance Details

Comprehensive property specifications and performance metrics

Energy Systems

Solar Power System

Not_installed

EV Charging

Not_available

Heating Systems

Heat Pump

Cooling Systems

Heat Pump

Lighting

Standard

Environmental Impact

Water Efficiency

Low

Carbon Footprint

120 kg CO2e/year

Sustainable Materials

N/A

Renewable Energy

N/A

Construction and Materials

Exterior Cladding

Mixed Material

Interior Cladding

Mixed Type Walls Mixed Type Walls

Construction Type

Mixed Materials

Insulation and Glazing

Wall Insulation

R-2.00 Rating

Roof Insulation

R-2.00 Rating

Windows

Single Glazing

AirTightness

1.00 ACH@50Pa

Airbnb Price Estimator

Estimated Rate
$950 - $1,100
Based on similar properties in the area

Rental Price Estimator

Estimated Rental Rate
$3,500 - $4,000
Based on similar properties in the area

Insurance Risk Rating

Has Insurance/Can Be Insured

This property is currently insured or eligible for insurance coverage

Based on location, building materials, and natural hazard exposure
Mortgage Calculator

Air Metrics

Air Quality Rating
Good
Grade A
Air Replacement Time
Moderate
2 hours
Temperature Stability
Moderate
Moderate

Based on continuous monitoring and environmental sensors

Utilities & Services

Water Source

Council Supply

Sewerage System

Council Sewer

Power Supply

Mains Power

Internet Connection

Fibre

Based on council records and property documentation

Solar Exposure Metrics

Daily Sunlight
6-8 hours
6-8 hours / day
Seasonal Variation
Moderate
Moderate
Solar Potential
High
High

Based on annual solar studies
and site analysis

Thermal Performance Metrics

Heat Retention
Moderate
Moderate
Thermal Bridging
Moderate
Moderate
Temperature Differential
5°C
5°C

Based on thermal imaging and temperature monitoring

School Zones (10 KM)

Nearby Schools (10 KM)
Loading...
Loading nearby schools...
🏫
No Schools Found
We couldn't find any schools in the nearby area.

Contact Selling Agent James Private Seller

Thank you! Your message has been sent successfully. The agent will contact you soon.
Error! Something went wrong. Please try again.
1 of 10
Property Image