$779,000

10 Harlequin Drive, Rolleston

Save Property
4 Bedrooms
2 Bathrooms
200.00 Property Footprint
600 m² Land Footprint

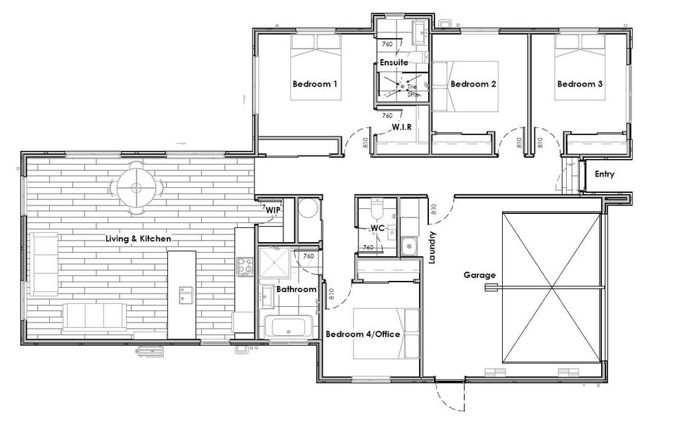
Property Floor Plan

Property Image 5

Property Description

Modern Comfort Meets Timeless Style

Step into this beautifully crafted four-bedroom home, where thoughtful design meets everyday functionality. With a spacious open-plan layout, this home is ideal for growing families, busy professionals, or anyone who loves to entertain.

Enjoy a sun-soaked living area, seamless indoor-outdoor flow, and quality finishes throughout—including sleek tiled bathrooms (with tiled shower in the master), a separate WC, and a designer kitchen featuring stone benchtops and Godfrey Hirst carpet underfoot for added comfort.

Scandinavian-inspired styling brings a light, airy feel with soft neutral tones and clean lines—balanced by warm, welcoming touches that feel unmistakably Kiwi. The home also includes an internal-access double garage, driveway, and fencing all completed for your convenience.

4 Double Bedrooms

2 Bathrooms + Separate Toilet

Tiled Shower in Ensuite, Tiled Bathroom Floors

Oriented for all-day sun and ideal backyard living

Internal access double garage, driveways and fencing included

Interested? Message me your email address for a full information pack, or get in touch to arrange a viewing.

Property Details

Property Type:
Houses
Category:
sale
Street Address:
10 Harlequin Drive, Rolleston
Suburb:
Rolleston
City:
Rolleston
Region:
0
Land Area:
600m²
Floor Area:
200.00
Floor to Land Ratio:
0.33 (Higher density)
Site Coverage:
33.33% of total land
Annual Property Rates:
$2,345
Building Efficiency:
50.00m² per bedroom

Agent Information

Niko Memmos

Niko New Company
Website Not Available

Building Performance Details

Comprehensive property specifications and performance metrics

Energy Systems

Solar Power System

Not_installed

EV Charging

Not_available

Heating Systems

Heat Pump

Cooling Systems

Ceiling Fans

Lighting

Led

Environmental Impact

Water Efficiency

Low

Carbon Footprint

123 kg CO2e/year

Sustainable Materials

N/A

Renewable Energy

None

Construction and Materials

Exterior Cladding

Monolithic Plaster Cladding

Interior Cladding

Plaster Plaster

Construction Type

Plaster Cladding

Insulation and Glazing

Wall Insulation

R- Rating

Roof Insulation

R- Rating

Windows

Double Glazing

Air Tightness

ACH@50Pa

3D Walkthrough

No 3D Walkthrough available

Airbnb Price Estimator

Estimated Rate
$150 - $200
Based on similar properties in the area

Insurance Risk Rating

Cannot Be Insured

This property is in a high-risk zone and may not qualify for insurance

Based on location, building materials, and natural hazard exposure
Mortgage Calculator

Air Metrics

Air Quality Rating
Good
Grade A
Air Replacement Time
Moderate
2 hours
Temperature Stability
Moderate
Moderate

Based on continuous monitoring and environmental sensors

Utilities & Services

Water Source

Council Supply

Sewerage System

Council Sewer

Power Supply

Mains Power

Internet Connection

Fibre

Based on council records and property documentation

Solar Exposure Metrics

Daily Sunlight
6-8 hours
6-8 hours / day
Seasonal Variation
Low
Low
Solar Potential
Low
Low

Based on annual solar studies
and site analysis

Thermal Performance Metrics

Heat Retention
Low
Low
Thermal Bridging
High
High
Temperature Differential
3°C
3°C

Based on thermal imaging and temperature monitoring

School Zones (10 KM)

Nearby Schools (10 KM)
Loading...
Loading nearby schools...
🏫
No Schools Found
We couldn't find any schools in the nearby area.

Property Documentation

Download available property documents

Essential Documents

Land Information Memorandum (LIM)

Required for property listing

Download

Sale & Purchase Agreement

REINZ Standard Form (Required)

Download

Additional Documents

Building Report

Independent Assessment

Download

Login Required

Login to see Property Documentation

Contact Selling Agent Niko Memmos

Thank you! Your message has been sent successfully. The agent will contact you soon.
Error! Something went wrong. Please try again.
1 of 10
Property Image